
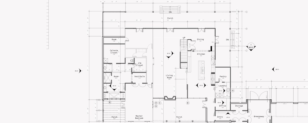
Design by: ARCH&also, LLC / Ashlie Latiolais, Architect
Project type: Renovation
I collaborated with ARCH&also by transferring their design from AutoCAD to Revit, building a 3 dimensional, comprehensive model and producing a DD set for the project.

FRANCISCO FARRERA / TEXAS LICENSED ARCHITECT
5 years of experience in commercial, industrial and residential architecture. I offer services through every phase of design, documentation and permitting. Let’s make your project a success!


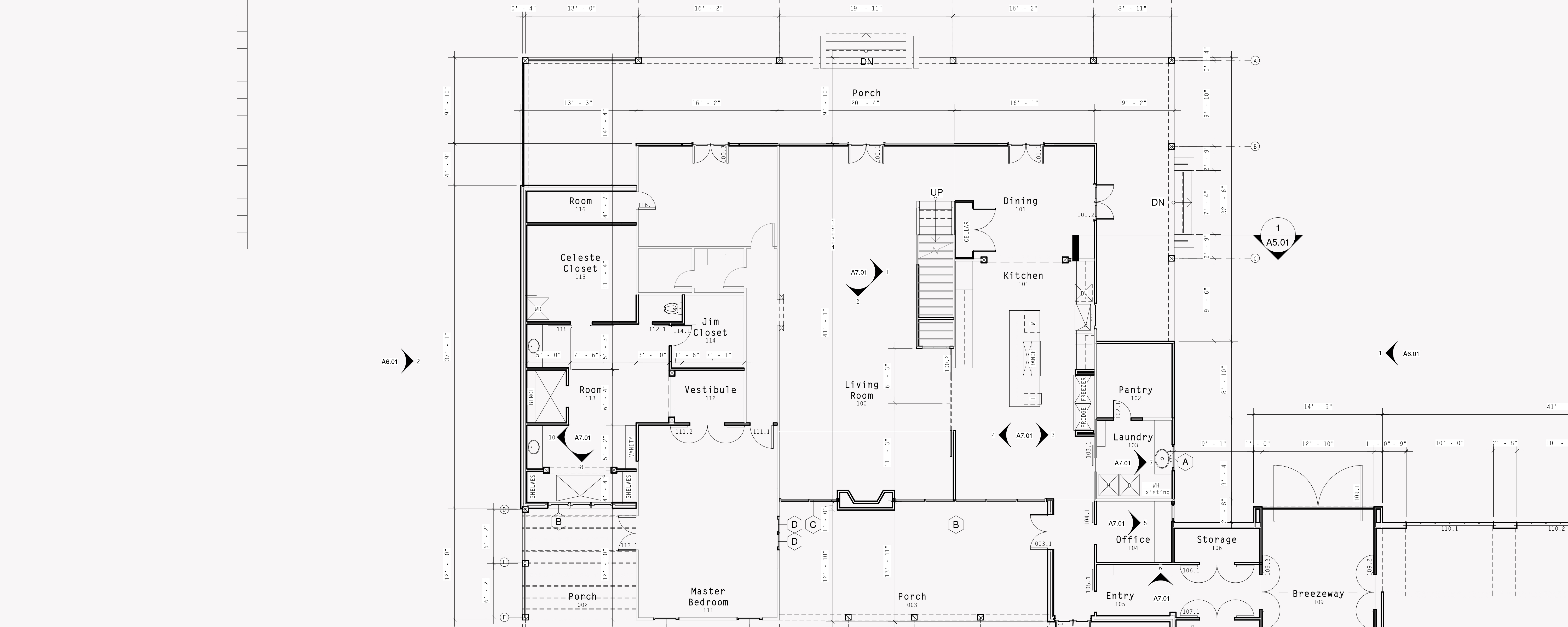
Design by: ARCH&also, LLC / Ashlie Latiolais, Architect
Project type: Renovation
I collaborated with ARCH&also by transferring their design from AutoCAD to Revit, building a 3 dimensional, comprehensive model and producing a DD set for the project.
Leave a comment